Plans de l'Existant DWG 2D (Norme SIA 400) :
La Base de Travail Numérique pour Architectes et Ingénieurs.
Ne basez plus vos projets de rénovation sur des plans d’archives approximatifs. À partir de nos relevés LiDAR haute précision, nous produisons la mise au net DWG de vos plans de niveaux et plans d’état actuel (« As-Built »). Fini les ressaisies fastidieuses : nos fichiers sont directement exploitables dans AutoCAD ou ArchiCAD, vous offrant une certitude absolue pour démarrer vos études.
Structuration Rigoureuse selon la Norme SIA 400
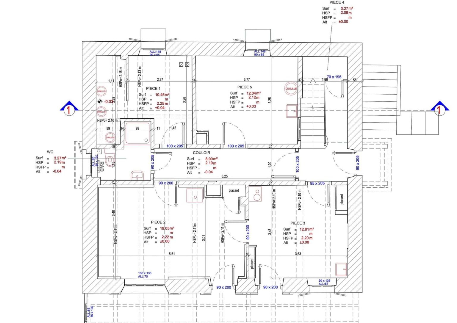
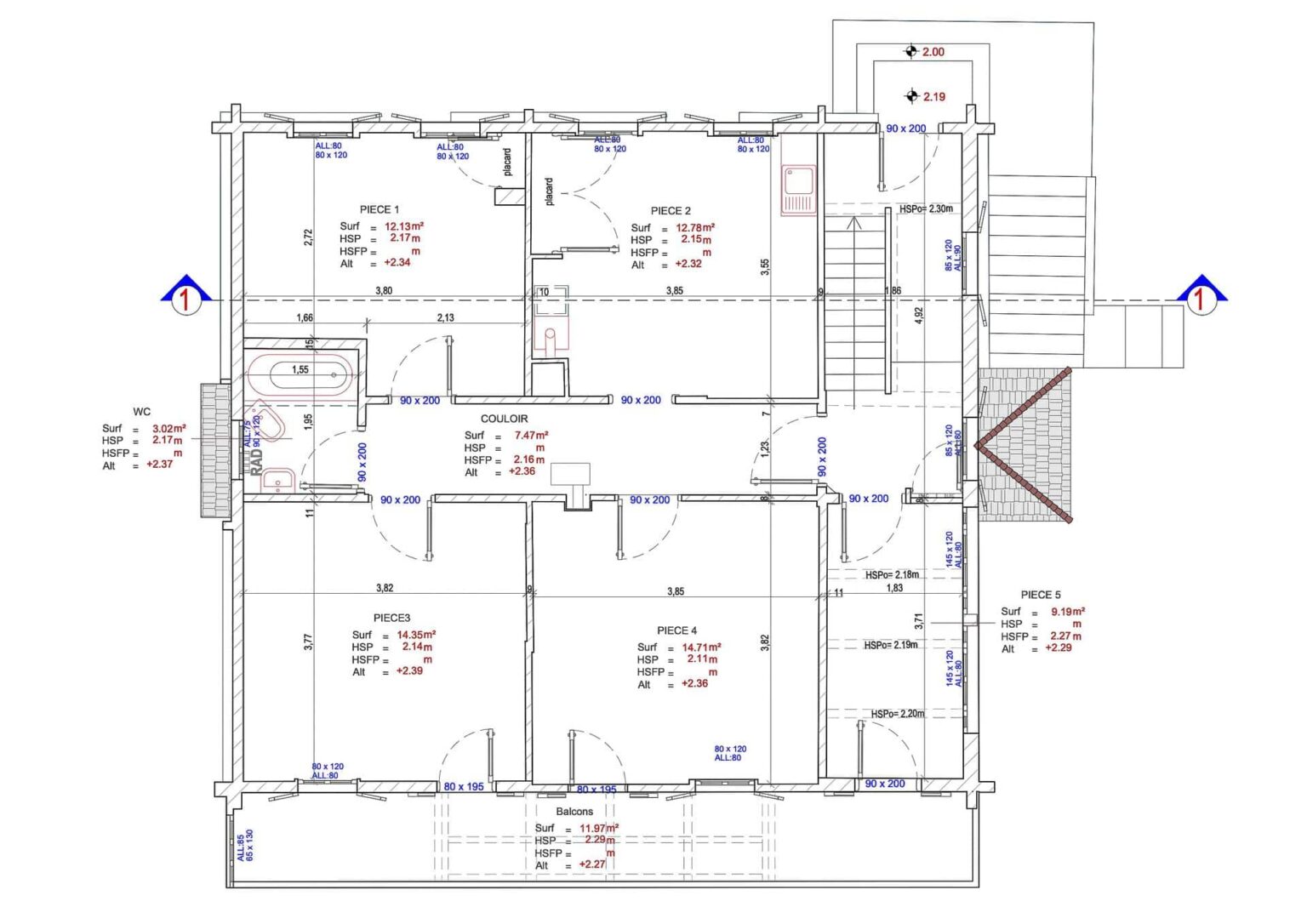
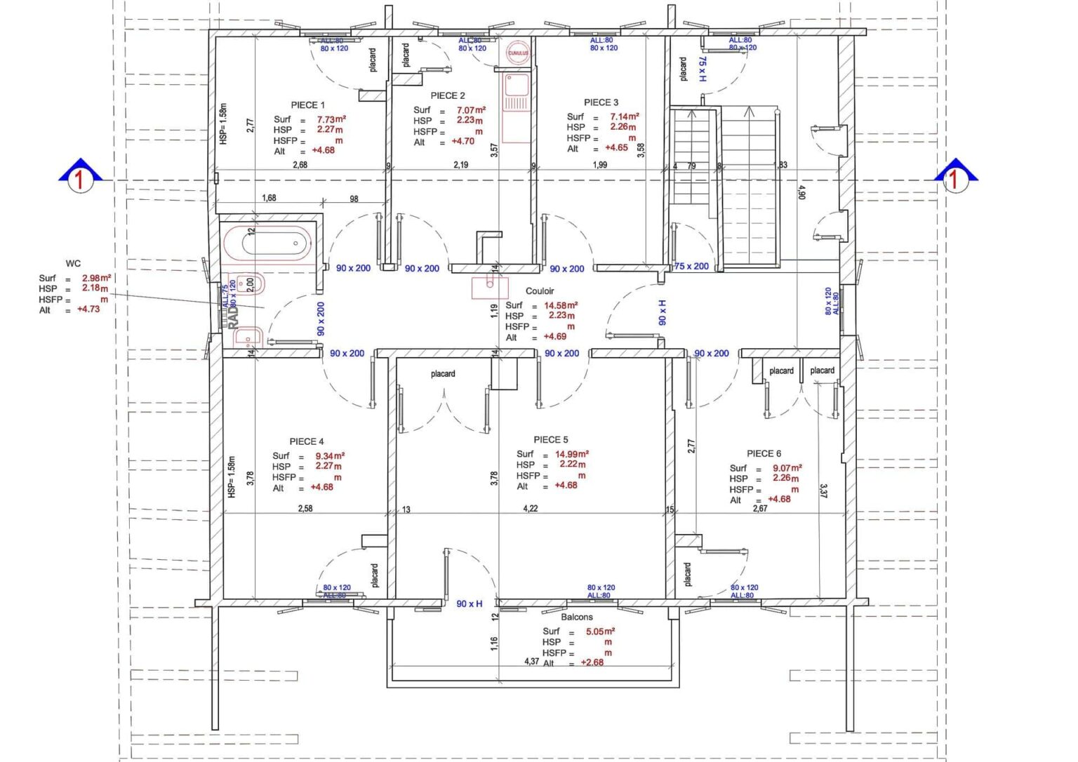
Un plan technique n’a de valeur que s’il est structuré. Nous livrons des plans 2D DWG d’une rigueur implacable, strictement conformes à la norme SIA 400. La gestion des calques (layers), les épaisseurs de lignes et la nomenclature sont optimisées pour s’intégrer sans friction dans les standards suisses de la construction.
Plans DWG & Précision
Fini les plans d’archives faux. Nous figeons la géométrie réelle pour vous fournir une documentation technique irréprochable :
Exactitude Millimétrique : Chaque mur, fenêtre et décrochement est dessiné selon la réalité du nuage de points.
Respect de Vos Normes : Organisation des calques (Layers), styles de cotes et hachures adaptés à votre charte graphique.
Base Saine : Le point de départ incontournable pour vos demandes de permis, rénovations ou mises en PPE.










Format DWG & Intégration
Assurez une interopérabilité totale au sein de vos projets. Nos plans s’intègrent nativement dans votre écosystème logiciel (AutoCAD, Revit, ArchiCAD, SketchUp), éliminant les ressaisies inutiles.
Contrairement à un PDF statique, nos fichiers DWG sont des outils de travail vivants : calques normalisés, géométrie modifiable et métrés vérifiés. C’est la garantie d’une collaboration fluide et sans friction technique entre architectes, ingénieurs et maîtres d’ouvrage.
Permis, Rénovation & FM
Nos relevés s’intègrent à toutes les étapes de vie du bâtiment :
Mise à l’Enquête & Permis : Des façades et coupes justes pour valider vos dossiers administratifs sans rejet.
Rénovation & Transformation : Une base fiable pour calculer vos démolitions et projeter vos extensions.
Gestion de Parc (Facility Management) : Des surfaces locatives calculées au cm² près pour optimiser vos rendements
Plans DWG pour Bâtiments Historiques
Face aux murs arrondis et aux faux-aplombs du bâti ancien, les plans d’archives sont obsolètes. Nous extrayons de nos nuages de points des plans 2D d’une exactitude rigoureuse, indispensables pour vos rénovations complexes et pour valider vos dossiers auprès des commissions cantonales. Idéal pour : Les architectes du patrimoine et les mises à l’enquête exigeantes.





Plans As-Built
Grâce à nos relevés laser 3D ultra-précis, nous produisons des plans as-built (tels que construits) qui reflètent la réalité exacte du terrain. Chaque détail technique, du moindre alignement aux épaisseurs exactes de murs, est fidèlement restitué.
Exactitude millimétrique : Fini les plans d’archives faux. Nous figeons la géométrie réelle.
Base saine : Une documentation fiable pour vos projets de rénovation, d’extension ou de mise en conformité.
Sécurité : Éliminez le risque d’erreur de conception dû à un plan de l’existant approximatif.
Services Complémentaires
Augmentez la portée de vos DWG. Grâce au scanner LiDAR, nous garantissons une reproduction fidèle pour reproduire le bâtiment à l’existant As-Built.
Relevé 3D : Nous réalisons un scan de bâtiment millimétrique complet.
Maquette numérique : Ces données alimentent la modélisation BIM pour une maquette 3D intelligente.
Plans 2D : Nous générons vos plans de façade pour l’extérieur et plans de coupes pour la structure interne.
Détails complexes : La photogrammétrie capture les éléments d’ornement avec précision.
Ces scans LiDAR As-Built offrent une documentation technique complète pour votre projet.
Vos plans DWG sont-ils directement exploitables par mon architecte ?
Absolument. Nous fournissons un plan architecte dwg brut et structuré (calques, blocs, cotes), prêt à l’emploi. Votre architecte reçoit une base fiable de l’existant pour démarrer immédiatement son projet de transformation sans devoir redessiner.
Fournissez-vous des plans de l'état actuel (As-Built) ?
Oui, c’est notre spécialité. Nous réalisons le relevé de l’existant pour produire des as-built drawings (plans tels que construits). Nous figeons la réalité géométrique du bâtiment à l’instant T, ce qui vous offre une base de travail incontestable avant toute rénovation.
Quelle est la différence entre un vieux plan papier et vos plans DWG ?
Un plan pour rénovation basé sur d’anciennes archives est souvent obsolète ou faux. Nos plans DWG sont issus d’un relevé laser actuel : ils montrent la réalité exacte d’aujourd’hui (faux-aplombs, déformations, épaisseurs réelles), éliminant les risques d’erreurs lors de la conception.
Quelle différence entre PDF, DXF et DWG ?
Le PDF est une « image » numérique pour l’impression, non modifiable techniquement. Le DXF est un format d’échange ouvert mais lourd. Le DWG est le format natif, compact et intelligent, qui permet de modifier le plan (bouger une cloison, changer une cote). Pour un architecte, le DWG est impératif.
Pourquoi demander un plan "As-Built" ?
Un plan « As-Built » certifie la géométrie finale du bâtiment après construction ou avant rénovation. C’est la seule garantie juridique et technique que votre projet se base sur le réel et non sur la théorie.


