Recevez des plans précis au format DWG, directement exploitables pour vos projets techniques et architecturaux.

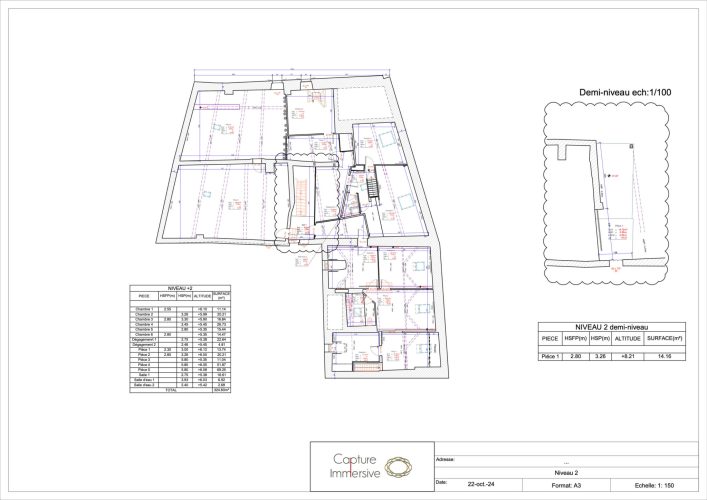
Grâce à nos relevés 3D ultra-précis, nous produisons des plans 2D « tels que construits ». Chaque détail technique, du moindre alignement aux épaisseurs exactes, est fidèlement restitué. Vous disposez ainsi d’une documentation fiable et précise, directement utilisable pour vos projets de rénovation, de construction ou d’archivage technique.
Interopérabilité
Compatibilité logiciels
Exactitude
Incontournables en CAO, nos plans sont directement exploitables dans AutoCAD, Revit, Archicad ou SketchUp, garantissant une interopérabilité optimale. Contrairement au PDF figé, le DWG est modifiable : calques organisés, annotations personnalisées, métrés précis. C’est l’assurance d’une intégration simple et efficace dans vos workflows techniques, facilitant les échanges entre partenaires, bureaux d’études et maîtres d’ouvrage.
Normes
AutoCAD
Compatibilité
Nos plans DWG sont parfaitement adaptés à vos besoins techniques complexes, qu’il s’agisse de dossiers réglementaires, de préparation minutieuse de chantier ou d’analyses structurelles approfondies. Grâce à leur haute précision et fiabilité, ces plans vous permettent de gagner du temps, de réduire les coûts et d’éviter des erreurs techniques onéreuses lors de la mise en œuvre de vos projets.
Permis
Modification
Intégration
Tandis que le DWG est technique, le Floorplan est stratégique pour vendre en Suisse Romande. Un plan d’étage à jour n’est plus une option : c’est une exigence des banques pour le prêt et votre protection juridique (la « qualité promise »). Un plan imprécis peut bloquer un financement ou causer des litiges après la vente. Il est le fondement d’une transaction sécurisée. Garantir sa fiabilité est la clé.
Floorplan
AObligation Suisse
Vente Immobilière
Augmentez la portée de vos fichiers DWG avec nos autres services complémentaires : la modélisation BIM pour une maquette 3D intelligente de votre bâtiment, les plans de façade pour visualiser l’aspect extérieur, les plans de coupes pour comprendre la structure interne, et la photogrammétrie pour capturer avec précision des éléments complexes. Ensemble, ces services offrent une documentation technique complète et cohérente qui répond à tous les besoins de votre projet.
Photogrammétrie
BIM
Plan de façade
Pour offrir les meilleures expériences, nous et nos partenaires utilisons des technologies telles que les cookies pour stocker et/ou accéder aux informations de l’appareil. Le consentement à ces technologies nous permettra, ainsi qu’à nos partenaires, de traiter des données personnelles telles que le comportement de navigation ou des ID uniques sur ce site et afficher des publicités (non-) personnalisées. Ne pas consentir ou retirer son consentement peut nuire à certaines fonctionnalités et fonctions.
Cliquez ci-dessous pour accepter ce qui précède ou faites des choix détaillés. Vos choix seront appliqués uniquement à ce site. Vous pouvez modifier vos réglages à tout moment, y compris le retrait de votre consentement, en utilisant les boutons de la politique de cookies, ou en cliquant sur l’onglet de gestion du consentement en bas de l’écran.
Recevez une proposition personnalisée adaptée à vos besoins en quelques clics. Notre équipe d’experts vous répondra sous 24h avec une solution sur mesure.
secteur d'activité
Articles
FAQ