Floor plan en Suisse romande : utilité, obligations, mise à jour, fiabilisation
Vous vendez, rénovez ou louez un bien immobilier en Suisse Romande ? Vous avez probablement un dossier avec de vieux plans, peut-être même dessinés à la main. Mais sont-ils fiables ? Sont-ils à jour ?
Souvent sous-estimé, le « floorplan » (ou plan d’étage) est aujourd’hui un document non négociable. Un plan obsolète ou imprécis n’est plus une simple formalité administrative ; c’est un risque financier et juridique majeur qui peut bloquer une vente, compliquer un financement bancaire ou faire échouer un projet de rénovation.
En tant qu’experts en relevé architectural et modélisation, nous répondons aux questions clés que se posent nos clients : À quoi sert réellement un floorplan ? Pour qui est-il indispensable ? Et surtout, comment garantir sa fiabilité à l’ère du numérique ?
Ce guide est conçu pour répondre à vos intentions de recherche et vous armer des bonnes informations.
Contactez-nous pour vos plans Floorplan
Besoin de plans précis pour votre projet en Suisse romande ? Nos experts transforment vos relevés 3D en fichiers Floorplan impeccables et conformes aux normes SIA.
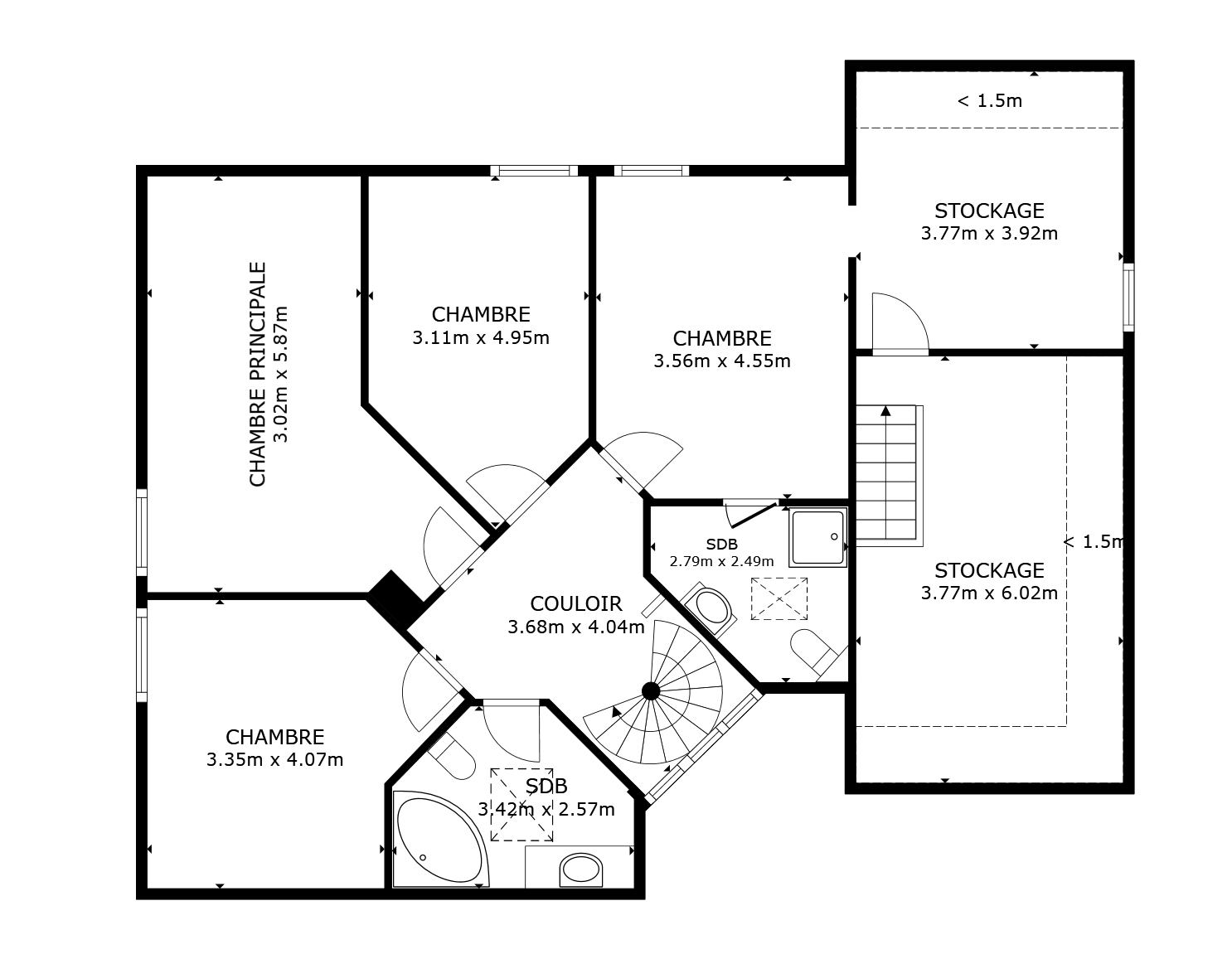
1. Qu’est-ce qu’un « Floorplan » ? (Et pourquoi ce n’est pas juste un « joli dessin »)
Un floorplan est un dessin technique à l’échelle, représentant une vue de dessus d’un niveau de votre propriété. Il montre l’agencement des pièces, les murs, les portes, les fenêtres et les dimensions exactes.
C’est le langage universel de l’immobilier.
Il ne faut pas le confondre avec un fichier DWG, qui est un format de fichier de travail technique utilisé par les architectes. Le floorplan est le résultat : un document lisible et précis, indispensable pour une multitude d’acteurs.
2. Pour Qui et à Quoi Sert un Floorplan Précis ?
L’utilité d’un plan à jour va bien au-delà de la simple visualisation. Il est au centre de toutes les interactions.
Pour le Vendeur Immobilier et l’Agence :
Accélérer la vente : Un dossier complet incluant des plans clairs inspire confiance. Les acheteurs peuvent se projeter, planifier leur aménagement et prendre une décision plus rapidement.
Justifier le prix : Il valide la surface habitable, un élément clé de la négociation.
Filtrer les acheteurs : Un plan interactif ou 3D permet aux acheteurs de « visiter » le bien en ligne, qualifiant ainsi les visites physiques.
Pour l’Acheteur et sa Banque :
Obtenir un financement : C’est simple, aucune banque en Suisse n’accordera un prêt hypothécaire sans plans à jour. La banque prend le bien en garantie ; elle doit donc savoir avec certitude ce qu’elle finance. Un plan non conforme est un motif de refus de crédit.
Pour le Notaire et le Registre Foncier :
Valider la transaction : Le notaire a un devoir de diligence. Il doit vérifier la cohérence entre l’acte de vente, ce qui est inscrit au Registre Foncier, et la réalité physique du bien. Un plan à jour est le « passeport » qui prouve cette conformité.
Pour le Propriétaire (Rénovation) :
Planifier et budgétiser : C’est le point de départ de tout projet. Les architectes et entrepreneurs s’en servent pour chiffrer les matériaux, planifier les travaux et éviter les erreurs coûteuses.
Obtenir des permis : Toute demande de permis de construire exige des plans précis de l’état existant.
Pour le Gérant d’Immeuble (Facility Management) :
Gérer l’espace : Pour planifier la maintenance, optimiser l’occupation des bureaux ou gérer les itinéraires de sécurité.
3. Le Point Critique : L’Obligation d’un Plan à Jour en Suisse Romande
C’est ici que l’intention de recherche « obligation plan immobilier Suisse » prend tout son sens. En Suisse, un plan n’est pas informatif, il est contractuel.
Le Risque Juridique : La « Qualité Promise » Selon le droit suisse (notamment l’art. 197 du Code des obligations), les informations fournies dans le dossier de vente, y compris les surfaces indiquées sur les plans, constituent une « qualité promise ».
Que se passe-t-il si votre plan indique 120 m² et que le bien n’en fait que 115 m² ?
Même si l’acheteur a visité le bien, la jurisprudence du Tribunal Fédéral est claire : il est en droit de se fier aux plans. Il peut intenter une action en justice après la vente pour obtenir une réduction du prix de vente proportionnelle à la surface manquante.
Les Risques Financiers et Réglementaires
Refus de la banque : Le risque le plus courant. La vente échoue faute de financement.
Blocage chez le notaire : Le notaire refuse d’instrumenter l’acte si les plans ne correspondent pas à la réalité (ex: une véranda a été ajoutée mais n’est sur aucun plan).
Problèmes de conformité : La Suisse Romande a des exigences cantonales spécifiques (CECB, OIBT, diagnostic amiante avant travaux). Un plan à jour est la base pour réaliser ces diagnostics et prouver la conformité du bien.






4. Quand Faut-il Mettre à Jour ses Plans ?
La réponse est simple : dès que la réalité physique du bien change, et impérativement avant toute transaction ou projet.
Avant une vente immobilière (pour les raisons légales, financières et commerciales vues ci-dessus).
Avant des travaux de rénovation (pour planifier et obtenir les permis).
Après des travaux (pour documenter ce qui a été « réellement construit » – on parle de plans « tel que construit » ou « as-built »).
Après un agrandissement, une surélévation, ou la construction d’une annexe (piscine, véranda, couvert à voiture).
5. Comment Fiabiliser ses Floorplans ? La Solution Moderne par Scan 3D
C’est la question centrale pour un propriétaire : « Comment obtenir un plan fiable sans y passer des mois ? »
L’Ancienne Méthode : Le relevé manuel au mètre-ruban. Cette méthode est lente, intrusive et très sujette aux erreurs humaines, surtout dans les bâtiments anciens aux murs irréguliers.
La Solution Moderne (Notre Service) : Le Relevé par Scan Laser 3D (Lasergrammétrie) Cette technologie révolutionne la création de plans.
Le Scan : Nous nous déplaçons avec un scanner laser 3D qui capture des millions de points de mesure en quelques minutes. C’est une réplique numérique exacte, au millimètre près, de votre propriété (le « nuage de points »).
La Modélisation : À partir de ce « jumeau numérique », nos techniciens dessinent les plans. La fiabilité est absolue, car basée sur une donnée réelle et non sur une interprétation manuelle.
Le Résultat : Vous recevez des floorplans d’une précision infaillible.
Les Avantages du Scan 3D pour Vous :
Fiabilité Garantie : C’est le seul moyen de produire un plan « tel que construit » 100% exact, éliminant tout risque juridique lié aux surfaces.
Rapidité : Le scan d’une villa ou d’un grand appartement ne prend que quelques heures.
Polyvalence Maximale : C’est là que notre service prend toute sa valeur. Le même scan 3D sert de base pour créer tous les documents dont vous avez besoin :
Floorplans 2D techniques (pour la banque, le notaire, les architectes).
Floorplans 3D meublés (un outil marketing puissant pour la vente).
Visites virtuelles 360° (pour qualifier les acheteurs et se démarquer).
6. Questions Fréquentes (FAQ) sur les Floorplans
Q : Un floorplan est-il vraiment obligatoire pour vendre en Suisse Romande ? R : En pratique, oui. Bien qu’il ne s’agisse pas d’une loi unique, les banques l’exigent pour le prêt hypothécaire et le notaire pour valider la conformité du bien. De plus, en tant que vendeur, votre responsabilité légale est engagée sur les surfaces (la « qualité promise »). Vendre sans un plan précis est donc un risque majeur.
Q : Quelle est la différence entre un floorplan et un plan de cadastre ? R : Le plan de cadastre (ou plan de situation) montre les limites extérieures de votre parcelle et l’empreinte au sol du bâtiment. Le floorplan (ou plan d’étage) détaille l’intérieur : l’agencement des pièces, les murs, les portes et les dimensions. Pour une vente, les deux sont nécessaires.
Q : Mes vieux plans semblent corrects. Pourquoi les refaire ? R : Si la réalité n’a absolument pas changé (aucune cloison déplacée, aucune annexe), ils peuvent être utilisés. Cependant, un plan numérique récent et propre inspire confiance. Surtout, notre relevé par scan 3D permet de générer des outils de vente modernes (plans 3D, visites virtuelles) que vos anciens plans ne peuvent pas offrir, augmentant ainsi l’attractivité de votre annonce.
Q : Qu’est-ce qu’un plan « tel que construit » (as-built) et pourquoi c’est important ? R : Un plan « tel que construit » représente la réalité exacte du bâtiment après la fin des travaux (contrairement au plan de permis qui peut avoir changé). C’est la seule garantie de ce qui existe physiquement. Le scan laser 3D est la méthode la plus fiable pour produire un plan « tel que construit » et éliminer tout risque de litige sur les surfaces.
Q : Combien coûte un relevé de plan par scan 3D ? R : Le coût est un investissement qui dépend de la surface et de la complexité du bien. Cette méthode garantit une précision millimétrique qui vous protège légalement. De plus, elle vous fournit une base de données (le « jumeau numérique ») pour créer des plans 2D, des floorplans 3D et des visites virtuelles. C’est un investissement unique pour sécuriser et valoriser votre vente.
Conclusion : Votre Plan est un Actif, Pas une Contrante
À l’heure actuelle en Suisse Romande, un floorplan à jour n’est plus une option. C’est le fondement d’une transaction sécurisée, d’un financement accordé et d’un projet de rénovation réussi.
Considérer le plan comme une simple formalité, c’est s’exposer à des litiges, des refus de prêt et des retards. Investir dans un relevé professionnel par scan 3D, c’est transformer cette obligation en un atout commercial : vous sécurisez votre vente, vous rassurez l’acheteur et vous vous dotez d’outils marketing modernes qui font la différence.
Ne laissez pas un plan obsolète mettre en péril votre projet immobilier.
Prêt à fiabiliser votre bien ? Que ce soit pour une vente, une rénovation ou une mise en conformité, nos experts réalisent le scan 3D de votre propriété et vous fournissent des floorplans 2D, 3D et des visites virtuelles d’une précision millimétrique.
FAQ – Suivi de chantiers BTP par capture 3D en Suisse
1. Quels bénéfices représente la capture 3D pour le suivi d’un chantier BTP ?
La capture 3D offre une vision précise et complète de l’évolution du chantier. Elle permet de détecter rapidement les écarts par rapport au planning, de documenter chaque étape et de faciliter la communication entre tous les intervenants du projet.
2. Comment se déroule la mise en place d’un suivi de chantier par scan 3D ?
Analyse des besoins et programmation des interventions
Prises de vue régulières (scan laser ou photogrammétrie) à chaque phase clé
Génération de modèles 3D et de rapports visuels
Partage sécurisé des données avec les équipes sur site et à distance
3. Quelles sont les applications concrètes pour les chefs de projet et entreprises du BTP ?
Vérification des avancements par rapport au plan initial
Suivi et archivage des travaux (fondations, structure, finitions)
Aide à la réception des ouvrages et gestion des réserves
Documentation technique pour le maître d’ouvrage et la maintenance à long terme
4. La capture 3D peut-elle faciliter la gestion de plusieurs sites en parallèle ?
Oui, elle permet une centralisation des données, un accès rapide aux modèles et aux rapports, et une standardisation du suivi, même pour les chantiers multiples.
5. Quels sont les bénéfices en termes de communication et de transparence ?
Les modèles et rapports 3D offrent une base visuelle pour les échanges avec les clients, les équipes et les partenaires. Ils renforcent la confiance et montrent le sérieux du suivi sur le marché suisse du BTP.
6. La capture 3D aide-t-elle à optimiser les coûts et les délais ?
L’analyse précise limite les erreurs, permet des corrections anticipées et donc des économies considérables sur le budget et le planning global du projet.
À intégrer dans Elementor ou WordPress pour enrichir la page “Chantiers BTP”, booster la conversion et renforcer le SEO sur le secteur des travaux publics et du bâtiment en Suisse.
Exactement la même chose
Voici une FAQ optimisée pour la page « Floor Plan Suisse Romande : Utilité et obligations », centrée sur l’utilité concrète des plans de niveau pour les vendeurs, acquéreurs, propriétaires, agences et gestionnaires immobiliers en Suisse romande :
FAQ – Plans d’étages (Floor Plans) en Suisse romande
1. À quoi sert un floorplan précis lors d’une vente immobilière ?
Un plan d’étage à jour inspire confiance : il aide les acheteurs à se projeter, permet de valider la surface habitable et accélère la décision. Il simplifie la négociation et facilite les démarches auprès des banques et des notaires.
2. Pourquoi les banques suisses demandent-elles des plans à jour pour financer un achat ?
Le plan d’étage est la garantie pour la banque : il certifie les dimensions et la conformité du bien. Sans floorplan à jour, le crédit peut être refusé ou la transaction peut prendre du retard.
3. Comment fiabiliser rapidement ses plans avant une vente ou une rénovation ?
La solution moderne est le scan 3D : un relevé rapide et précis, même pour les bâtiments anciens ou atypiques. Cette méthode évite les erreurs humaines, génère des plans fiables et ouvre la porte à des outils innovants (floorplans 2D, 3D, visites virtuelles).
4. Quelle différence entre un floorplan, un plan de cadastre et un plan « tel que construit » ?
Le floorplan montre l’agencement intérieur (pièces, murs, portes) au niveau du sol
Le plan de cadastre détaille la parcelle et l’empreinte du bâtiment
Le plan « tel que construit » atteste de la réalité après travaux, indispensable après transformation ou agrandissement
5. Quand faut-il mettre à jour ses plans ?
Dès qu’une modification physique du bien a lieu : rénovation, ajout d’une extension, réaménagement ou avant une vente. Un plan à jour évite les litiges, les refus de financement et les blocages lors des transactions.
6. Quels sont les avantages d’un floorplan numérique récent pour les propriétaires et professionnels ?
Fiabilité des surfaces
Validation facile des permis et démarches administratives
Outil marketing moderne (plans 3D, visites immersives)
Valeur ajoutée pour la gestion, la vente ou la location



